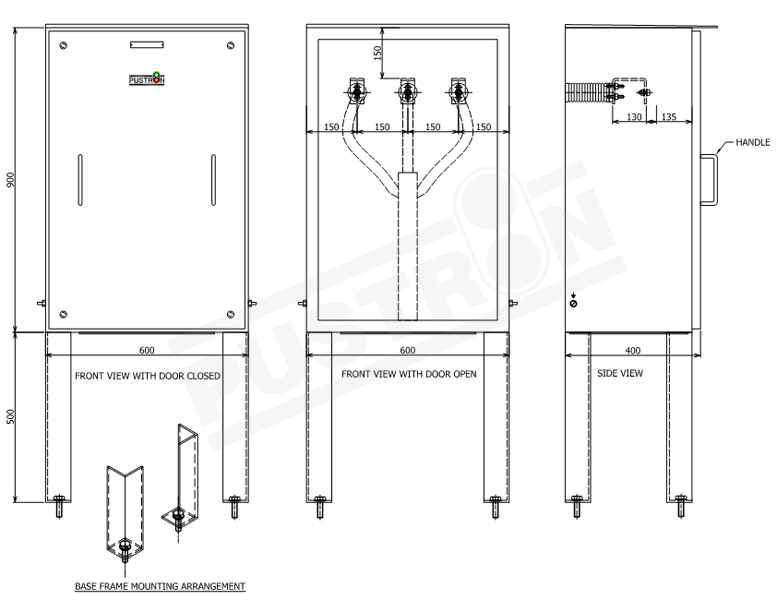
Every industry and every electrical distribution system needs this and we give the best solution by designing it as an item that needs no maintenance in any type of environmental condition.
JBs come in various sizes & shapes as per technical requirement, in various MOCs & protection class.
Pustron JBs are used for Medium & High Voltage Electrical applications with various options of Terminal connectors suitable as per user requirement and design.

